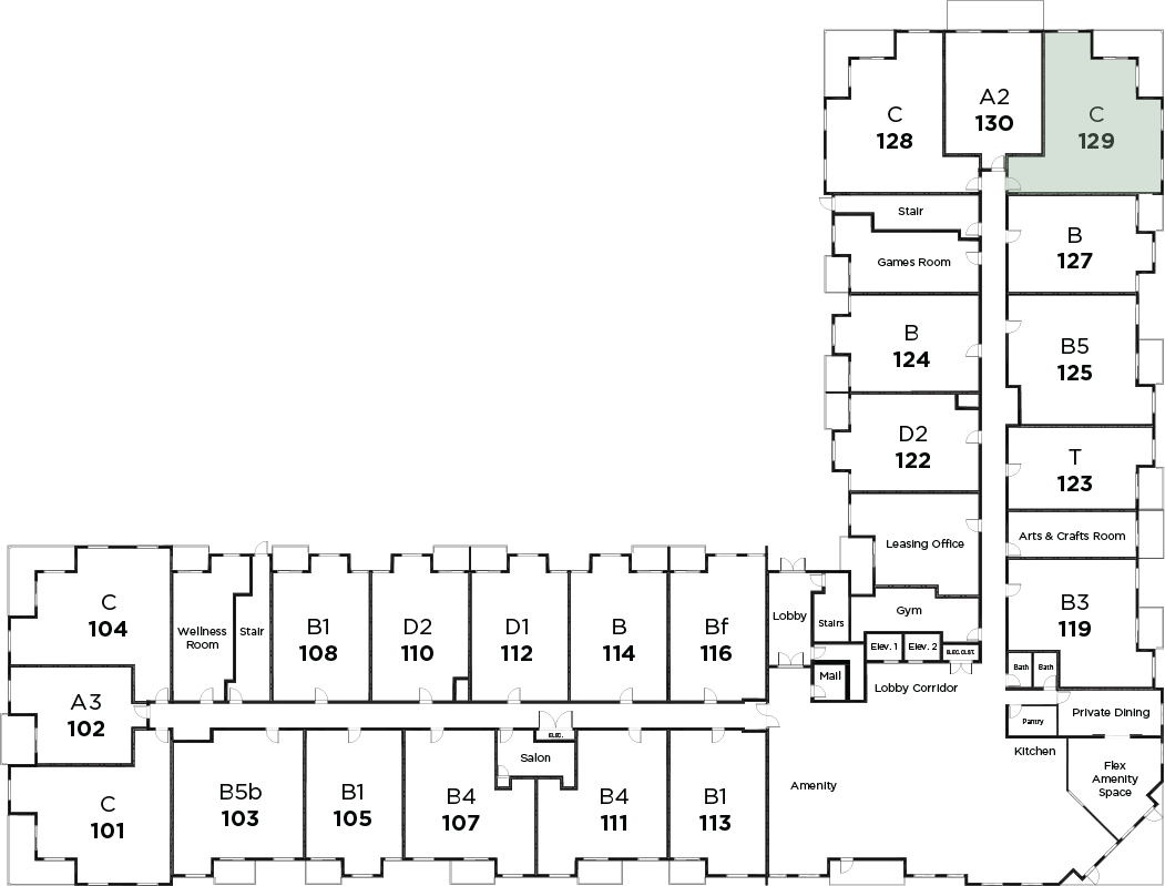
ParkviewSuite 129
- StatusAvailable
- Suite TypeC
- Similar Suites 101 Available 104 Available 128 Available 201 Available 204 Available 228 Available 231 Available 301 Leased 304 Available 328 Available 329 Leased 401 Available 404 Available 428 Leased 429 Available
- Suite Size1,070 ft²
- Patio Size170 ft²
- Total Size1,240 ft²
- Bedrooms2
- Bathrooms2
- Suite FacesNortheast
Parkview is under construction. Floor plans and suite specifications are still subject to change.
Download PDFContact Our Team
Contact our team, we'd love to answer your questions about living in Parkview.
Leasing Office
parkview@candergroup.ca
(780) 722-8080
Lease Office Hours
Mon - Sun: 1:00 to 5:00pm
Holidays: Closed
5601 Eton Blvd
Sherwood Park, AB
T8H 3A7
Our leasing office is temporarily located in our sister building Terra Vale.
Get directions on OpenStreetMap or Google Maps.
